ESP retrofit for Bagalkot cement
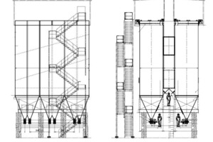
When a conversion of an ESP to a bag filter is necessary, 10 m fabric filter bags offer maximum air pollution prevention at lowest space requirements.
Air pollution is a transnational phenomenon and makes no hold on the land borders. Today in the industrial countries the most evident charges are removed. Now the necessary measures concern the industries of the developing countries and newly industrializing countries. This is also valid for India. The subcontinent produces about 6 % of the worldwide cement production (Fig. 1) and consumes after China the worlds second largest amount in cement (consumption in 2010: 212 million t). One of the affected regions is the South-Indian state of Karnataka. There lies 22.56 % of the national limestone...
