Apparatus and method for manufacturing cement clinker
(22) 18.02.2020
(43) 18.08.2021
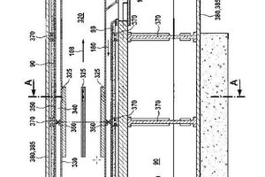
(57) A calciner 18 for receiving raw meal 102 from a preheater 20 of a cement clinker line 1, for calcining the raw meal 102 and for providing the calcined and/or pre-calcined raw meal 108 to a kiln of the cement clinker line 1 comprising at least one duct 320 configured to convey the raw meal from an inlet to an outlet, and at least one conduit 340 surrounding the duct 320 at least partially or being surrounded at least partially by the duct 320 and further having a wall 330 separating the duct 320 and the conduit 340 to thereby enable an indirect heat transfer via the wall 330 from an energy carrier fluid flowing through the conduit 340 to raw meal in the at least one duct 320, is scalable to be adapted to calcine large amounts of raw meal in a continuous process if the calciner has a bearing 380, 395 rotatably supporting the duct (320) relative to a support structure 390, and if the duct 320 is torque-transmittingly coupled to a rotational drive 395.
(71) Alite GmbH, 31535 Neustadt (DE)
(84) Designated Contracting States: AL AT BE BG CH CY CZ DE DK EE ES Fl FR GB GR HR HU IE IS IT LI LT LU LV MC MK MT NL NO PL PT RO RS SE SI SK SM TR; Designated Extension States: BA ME; Designated Validation States: KH MA MD TN
