Dry desulphurization apparatus for lime rotary kiln
(22) 23.11.2020
(43) 27.05.2022
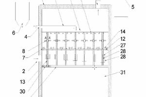
(57) A dry desulphurization apparatus for a lime rotary kiln. The dry desulphurization apparatus comprises a kettle body (1), wherein a flue gas inlet (2), a flue gas outlet (3) and a powder inlet (4) are provided in the kettle body (1); a powder spraying member, a rotating stream tray (7) and a turbulence assembly (8) are mounted in the kettle body (1); the powder spraying member is provided with spray heads (11); the rotating stream tray (7) is located below the powder spraying member; rotating stream holes (12) arc distributed on the rotating stream tray (7); the turbulence assembly (8) comprises a rotating shaft (13), rotating stream blades (14), a universal ball joint seat (15) and swing blades (16); the rotating shaft (13) is mounted in the kettle body (1) in a vertical direction; and the rotating stream blades (14) are located in the rotating stream holes (12). By means of the dry desulphurization apparatus for a lime rotary kiln, the contact area between flue gas and an alkaline powder is increased, thereby improving the desulphurization efficiency.
(71) Yancheng Lanfeng Environmental Engineering Technology Co. Ltd., Jiangsu 224014 (CN)
(84) ARIPO (BW, GIL, GM, KE, LR, LS, MW, MZ, NA, RW, SD, SL, ST, SZ, TZ, UG, ZM, ZW), Eurasian (AM, AZ, BY, KG, KZ, RU, TJ, TM), European (AL, AT, BE, BG, CH, CY, CZ, DE, DK, EE, ES, FT, FR, GB, GR, HR, HU, IE, IS, IT, LT, LU, LV, MC, MK, MT, NL, NO, PL, PT, RO, RS, SE, SI, SK, SM, TR), OAPI (BF, BJ, CF, CG, CI, CM, GA, GN, GQ, GW, KM, ML, MR, NE. SN, TD, TG)


 
						 
									

 
									