Chloride permeability of concrete applied with basalt fiber and nano-SiO2 modified mortar coatings
The influence of nano-SiO2 (NS) and basalt fiber (BF) modified cementitious coatings on chloride permeability in concrete and the influence mechanism explored by differential scanning calorimetry thermogravimetry (DSC-TG), X-ray diffraction (XRD), scanning electron microscopy (SEM) and mercury intrusion porosimetry (MIP) was studied. Results show that the chloride penetration resistance was significantly improved in the concrete applied with special mortar coating as compared to the non-coated variety, especially in concrete applied with 5 % NS and 0.5 % BF in a 6 mm modified mortar coating. Moreover, the mechanism analysis reveals that, all together, the heterogeneous nucleus effect, the high pozzolanic activity and micro-aggregate filling effect of NS, the inhibiting effect of BF on connected cracks and pores, and their grading advantage and synergy, improved the ability of concrete to counter chloride diffusion.
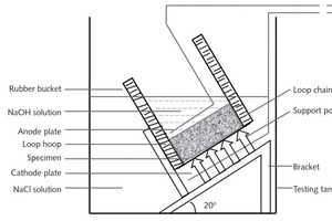
1 Introduction
Marine environment can seriously corrode and destroy the concrete structure. Chloride ion erosion, sulfate erosion, carbonation, microbiological corrosion, dry and wet alternation, and wave erosion and abrasion caused by storm are major causes of corrosion damage to marine concrete [1-3]. Among them, corrosion damage caused by chloride ions is especially prominent and seriously harmful to the safety and durability of marine engineering concrete [4-6]. Therefore, the investigation and modification research of the durability of concrete structures in marine environment are a...
