Method and apparatus for producing desulfurizing agent, and method for removing sulfur dioxide from cement kiln exhaust gas
(22) 01.08.2019
(43) 20.04.2022
(57) [Problem] To provide a method and an apparatus for producing a desulfurizing agent in which good handleability is achieved; the water content is easily adjusted; and the change of the slaking ratio of CaO can be kept small, as well as a method for desulfurizing cement kiln exhaust gas.
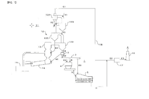
[Solution] An apparatus 1 for producing desulfurizing agent including: a drawing device 2 for drawing a cement raw material R5 discharged from a lowermost cyclone 12D of a preheater 12 of a cement burning device 11 or a preheated raw material discharged from a pre-heater cyclone of a cement burning device having a calcium oxide (CaO) content of 40% by mass or more; dividing means 3 for dividing the drawn cement raw material R7 or preheated raw material into two; a dissolving vessel 4 for adding water W to one R8 of the divided cement raw materials or preheated raw materials to cool it and simultaneously make it into a slurry; and a mixing dryer 5 for mixing the slurry with another R9 of the divided cement raw materials or preheated raw materials to promote slaking of calcium oxide in the cement raw material or the preheated raw material in a steam atmosphere where water content evaporates and dry the slaked cement raw material or preheated raw material, and so on.
(71) Taiheiyo Engineering Corporation, Tokyo 135-0042 (JP)
(84) Designated Contracting States: AL AT BE BG CH CY CZ DE DK EE ES Fl FR GB GR HR HU IE IS IT LI LT LU LV MC MK MT NL NO PL PT RO RS SE SI SK SM TR; Designated Extension States: BA ME; Designated Validation States: KH MA MD TN
